Vorteile

• passend für die gängigsten Gullytypen
• in verschiedenen Maßen lieferbar
• hohe Belastbarkeit
• Wärmebrückenvermeidung
• auch in Edelstahlausführung lieferbar

 

Tiefgaragenschächte

Extrem stabile Schächte mit besonders starkem PPGehäuse, mit vergrößerten Auf standflächen und verriegelbarem Gusseisen-Abdeckrost. Besonders zu empfehlen bei öffentlichen Dachgärten oder Vandalismusgefahr.

 
Produkt Produkt-nummer
TRH-30 210601
TRH-40 210602
TRH-50 210603
   
Bezugsnormen
EN 1433:2002  
DIN 19580  
MSZ EN 124:1999  
FLL Richtlinienk 5.5./2002  



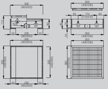
Produktbeschreibung


TRH-Produkte sind trit tbeständige Terrassenroste mit engmaschiger Abdeckung, die in verschieden Längen, Breiten, Höhen und stufenlos höhenverstellbar lieferbar sind.

Anwendung

Die DIADEM -TRH Terrassenroste sichern eine mehrschichtige Wasserableitung der Dachterrassen, sowie leichte Zugangs- und Reinigungsmöglichkeit der im Bodenbelag befindlichen Dachabläufe.


Einbauhinweise

Die Terrassenroste werden über dem Ablauf und an den Stellen mit dem zu erwartenden höchsten Wasseranfall eingebaut. Die abnehmbare und feuerverzinkte Rostabdeckung sichert dieWartung und die Pflege der Dachgullys und führt das Wassereinwandfrei ab.


Werkzeuge für den Einbau

• Schraubenschlüssel
• Gummihammer
• Metallsäge
• Wasserwaage


Zubehör

• Edelstahlabdeckung


Häufig gestellte Fragen

Wie hoch ist die Belastbarkeit der Deckroste?
TRH Terrassenroste sind für Terrassenoberflächen mit Fußgängerverkehr geeignet. Sie gehören in die Belastbarkeitsklasse 15.

Sind sie auch in rostbeständiger Ausführung zu bestellen?
Ja, die Roste sind in Edelstahlausführung lieferbar.

Was für Werkzeuge sind für die Höheneinstellung nötig?
Für die Einstellung sindWasserwaage und Schraubenschlüssel nötig.

Technische Daten Dim TRH 30 TRH 40 TRH 50
Produktnummer 210601 210602 210603
Höhe [cm] 8-12 (wir liefern auch individuelle Maße)
Breite [cm] 30 40 50
Länge [cm] 30 40 50
Abdeckung feuerverzinkter oder Edelstahl-Maschenrost
Maschenweite [mm] 40×10
Rinnenkörper UV-beständig PP
Drainrohranschluss 4 St., d=52mm (nur über 5 cm Höhe)
Drainrohrriegel nur über 5 cm Höhe
Höhenverstellung mit feuerverzinktem Schlittenelement, im 4 cm Bereich stufenlos
Farbe RAL 7032